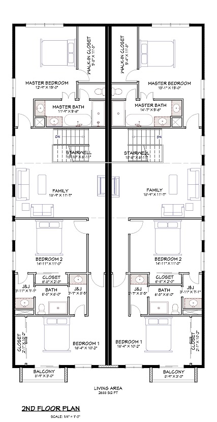
A two story, 4,225 sq. ft. side by side duplex in Dallas, Texas. Each unit has 2 living areas; a master suite with attached bath with garden tub, shower and his & her vanities and a walk-in-closet; an office; 2 bedrooms with closets and attached jack & jill bath; spacious kitchen with eat-in counter and dining area; pantry & laundry; garage; and front & rear porch.



