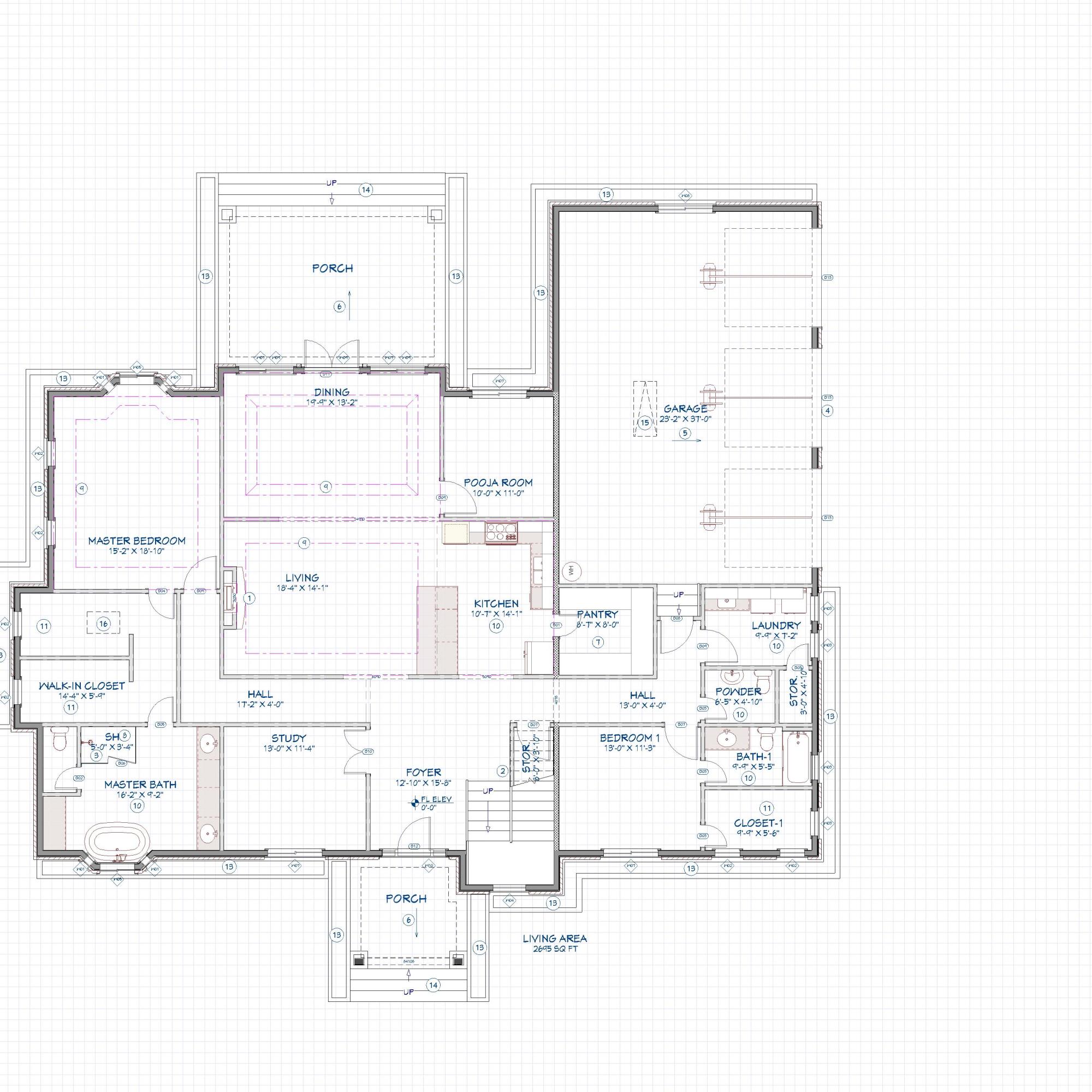
A 4.061 sq. ft. contemporary design home in Tyler, Texas for a modern family. It has an open floor plan with spacious living room with a fireplace; dining room with large windows and a french door that opens into a porch; study; eat-in kitchen with an island; laundry; pantry; master bedroom suite with spacious bathroom that has shower area, garden tub , his and her vanities and his and her walk-in closets; 4 additional bedrooms with attached baths and walk-in closets; media room; family room on 2nd floor; 3 car over-sized garage; an entry foyer, a front and a back porch.













